Feel Free to Select the Floorplan You are Interested In
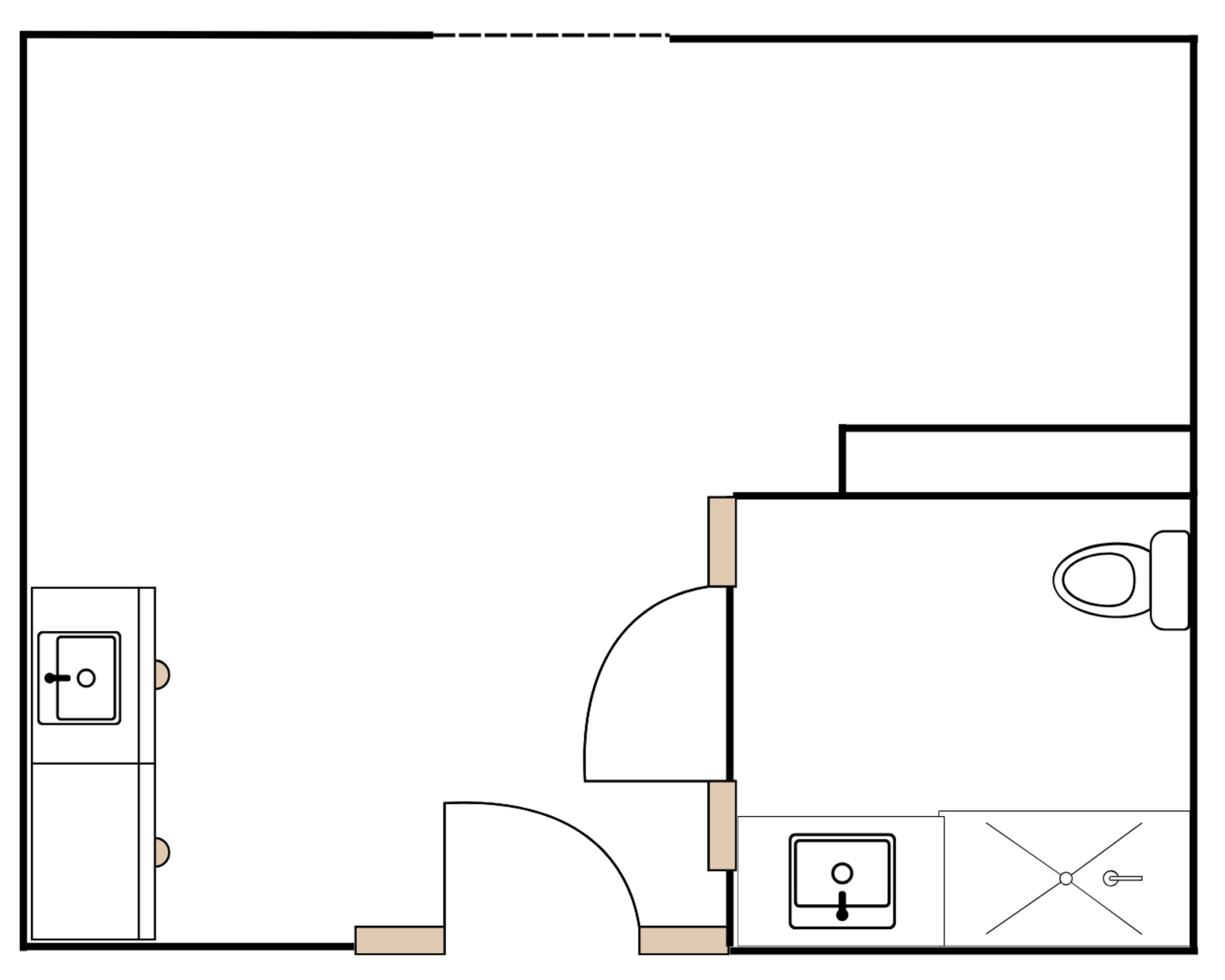
Grande Studio
- Grande Studio view 1
- Grande Studio view 2
- Grande Studio view 3
- Sizes of studios vary: Grande & Deluxe
- All apartments are walker and wheelchair accessible
- All bathrooms and showers are equipped with handrails
We offer a variety of studios. All studios come with kitchenettes, a window, a closet and a private bathroom and shower. Some studios face the backyard that overlook the herb gardens while others may face the tranquil courtyard. You may however be more inclined to an apartment that views the sun rise in the morning or fall at dusk.

One Bedroom One Bathroom
- One Bedroom
- All apartments are walker and wheelchair accessible.
- All bathrooms and showers are equipped with handrails.
We have one exquisite one bedroom apartments. All one bedroom apartments come with a spacious living area, kitchenette, 1-2 windows, a private bathroom and shower and a large walk-in closet!

Two Bedroom One Bathroom
- Two Bedroom view 1
- Two Bedroom view 2
- Two Bedroom view 3
- All apartments are walker and wheelchair accessible.
- All bathrooms and showers are equipped with handrails.
We have some of the roomiest two-bedroom apartments in Arlington. All two-bedroom apartments come with a spacious living area, kitchenette, two windows, a private bathroom and shower and two closets. There are a variety of two bedroom apartments that overlook the beautiful courtyard as well as some on north and south side of our building.





























